Na sprzedaż samodzielny lokal mieszkalny o powierzchni użytkowej 131,74 m², położony w nowym budynku w zabudowie szeregowej przy ul. Św. Rafała Kalinowskiego w Ełku, na cenionym Osiedlu Jeziorna, w bezpośrednim sąsiedztwie plaży miejskiej.
To nieruchomość, która łączy wygodę mieszkania w mieście z komfortem i prywatnością domu. Lokal jest bezczynszowy, posiada niezależne wejście, własny ogródek do wyłącznego korzystania o powierzchni 125,49 m² oraz dużą piwnicę o powierzchni 23,10 m².
Budynek został oddany do użytkowania w 2025 roku. Kameralna zabudowa zapewnia spokojne otoczenie, niewielką liczbę sąsiadów i większe poczucie prywatności.
Mieszkanie znajduje się na I piętrze i ma wygodny, dwupoziomowy układ.
Do lokalu prowadzi niezależne wejście przez klatkę schodową. Na pierwszym poziomie znajduje się przestronna część dzienna z salonem z aneksem kuchennym oraz wyjściem na duży balkon. Na tym poziomie zaplanowano również funkcjonalną sypialnię, łazienkę oraz duży przedpokój z korytarzem.
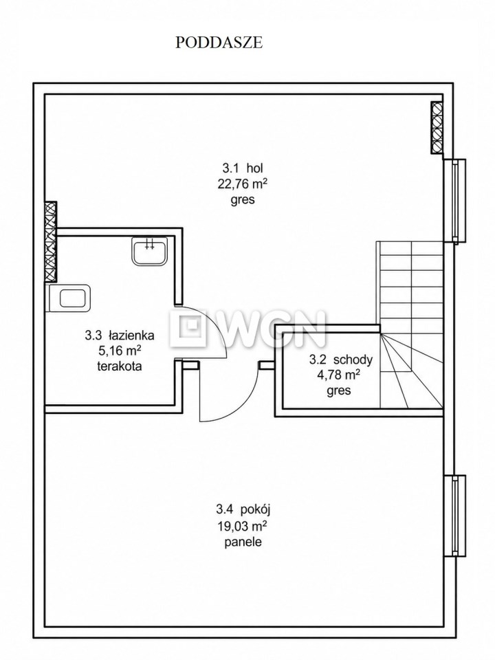
Z salonu na poddasze prowadzą wygodne, murowane schody. Drugi poziom tworzą dwie ustawne sypialnie doświetlone oknami dachowymi, łazienka oraz przedpokój.
Dużym atutem lokalu jest pełnowymiarowa piwnica o wysokości 260 cm. Może pełnić funkcję pomieszczenia gospodarczego, miejsca do przechowywania, domowej siłowni, pracowni lub dodatkowej przestrzeni rekreacyjnej. Z piwnicy jest bezpośrednie wyjście do ogrodu.
Do mieszkania przynależy ogródek o powierzchni 125,49 m², przeznaczony do wyłącznego korzystania przez właściciela lokalu.
To idealne miejsce na odpoczynek, spotkania z rodziną i znajomymi, zabawę dla dzieci, grill czy własną zieloną strefę relaksu. Dzięki ogrodowi mieszkanie stanowi świetną alternatywę dla domu jednorodzinnego, przy jednoczesnym zachowaniu wygody życia w mieście.
Lokal sprzedawany jest w stanie deweloperskim, co daje możliwość urządzenia wnętrza według własnego gustu i potrzeb.
W całym mieszkaniu zastosowano ogrzewanie podłogowe z indywidualnymi sterownikami temperatury w pomieszczeniach. Ogrzewanie zasilane jest z własnej gruntowej pompy ciepła marki STIEBEL ELTRON, co przekłada się na energooszczędność i niskie koszty utrzymania.
Budynek spełnia najnowsze standardy efektywności energetycznej. Podłączony jest do miejskiej sieci wodociągowej i kanalizacyjnej.
Nieruchomość znajduje się w jednej z atrakcyjniejszych części Ełku — na Osiedlu Jeziorna, tuż przy nowej plaży miejskiej.
To świetna lokalizacja dla osób, które cenią bliskość jeziora, terenów spacerowych i rekreacyjnych, a jednocześnie chcą mieć szybki dostęp do miejskiej infrastruktury. W okolicy znajdują się m.in. szkoła, hala sportowa, kościół, laboratorium, punkty usługowe oraz inne udogodnienia potrzebne na co dzień.
Położenie przy plaży i jeziorze sprawia, że lokal może być również ciekawą propozycją inwestycyjną, szczególnie pod wynajem premium.
To nieruchomość dla osób, które szukają czegoś więcej niż standardowego mieszkania. Przestronny układ, własny ogród, duża piwnica, bezczynszowy charakter lokalu oraz nowoczesne rozwiązania techniczne sprawiają, że jest to komfortowa i praktyczna alternatywa dla domu.
Idealna propozycja dla rodziny, osób ceniących przestrzeń i prywatność, a także dla inwestora szukającego nieruchomości w bardzo dobrej lokalizacji, blisko jeziora i plaży miejskiej.
Cena nieruchomości: 870.000 zł



