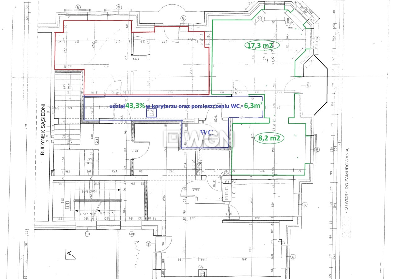
Do wynajęcia lokal użytkowy o powierzchni 25,50 m², położony na I piętrze budynku przy ulicy Wojska Polskiego w Ełku. Jest to przestrzeń idealna dla małych biznesów, takich jak biuro czy gabinet.
Wejście do budynku od strony ulicy, a następnie przez zadbaną klatkę schodową wchodzimy na pierwsze piętro. Lokal składa się z dwóch pomieszczeń, jedno o powierzchni 8,20 m² i drugie o powierzchni 17,30 m² z balkonem, z którego roztacza się widok na ulicę Wojska Polskiego. Do lokalu przynależy udział w korytarzu oraz pomieszczeniu WC z umywalką i toaletą.
Budynek, w którym znajduje się lokal, jest zadbany i ma dobrą widoczność z głównej ulicy. W okolicy znajduje się wiele innych firm i usług, co przyciąga stały ruch pieszych. Nieduży parking dla klientów i pracowników jest dostępny na miejscu. Doskonała lokalizacja przy głównej ulicy miasta sprawia, że jest to idealne miejsce na biuro lub działalność usługową. Zapraszamy do kontaktu i obejrzenia lokalu.
Cena wynajmu 990 zł/miesięcznie netto + opłaty za centralne ogrzewanie, prąd i wodę.



